University of Oxford – Student Accommodation – Oxford OX1

Information


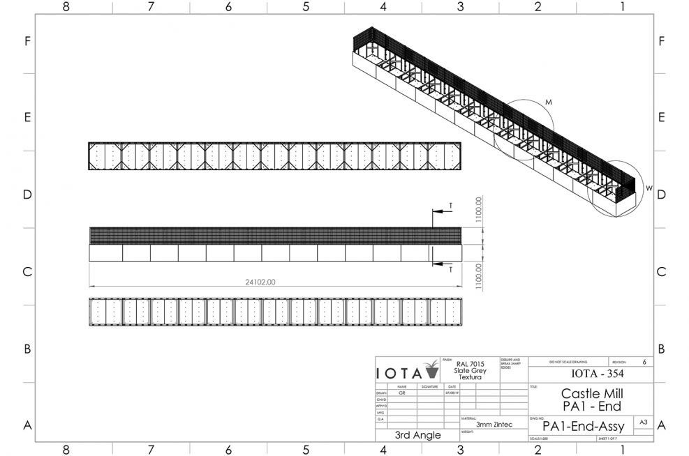
Nearly 300m of bespoke tree planters were commissioned for the Castle Mill student accommodation at Oxford University, Oxford OX1.

By any measure, this was a substantial project – key metrics include:

  • Total Length of Planters: 272m
  • Total Planting Volume: 539 CBM
  • Supplied in 155nr. Sections, each L [avg] 1754 x W 1800 x H 1100mm
  • Avg Weight each Section: 247kg
  • Artic Trailers to Supply: 29nr.
  • Installation Programme: 8 weeks, phased over 4 months

The drawings in the Image Gallery show just a small section of the works – around one tenth of the overall scheme.

The planters are planted with Height 6-7m trees, and were required to be exceptionally robust. The design and approval phase lasted three years, during which time IOTA worked closely with landscape architects, Nicholas Pearson Associates. The final design, as shown in the Image Gallery, includes:

  • Interface with underlying structural steel framework, to which planters are fastened
  • Root ball anchor points, and aerial guy anchor points
  • Substantial internal reinforcements, to handle severe planted loadings
  • Full-length security fencing, structurally integrated with the modular planter design
  • Thermal insulation to all internal faces

The planters were fabricated from 3.0mm Steel, zinc primed and Polyester Powder Coated to RAL 7015 [Slate grey]; using a durable, matte, textured paint formulation from Interpon / Akzo Nobel's D1036 Textura range.

IOTA’s planters were commissioned by principal contractors E W Beard Limited, on the basis of Design, Manufacture, Supply and Installation.


Sector Public Sector
Sub-sector Education
Services provided Design Manufacture Supply Installation
Year completed 2019 / 2020
Contractor / Client Beard Construction [E W Beard Limited] / University of Oxford
Consultant Nicholas Pearson Associates

Contact IOTA T. 01934 522617